• Vânzare
  • Case
Chișinău, Codru, str. Sihastrului

299 000€

ecoimobil-agent-avatar

Dan Gonța

Agent Imobiliar
Sună acum 068 881 068
ecoimobil-agent-avatar
Dan Gonța

068 881 068

str. Sihastrului
str. Sihastrului, Codru
  • 300 ㎡

    suprafața
  • 3

    dormitoare
  • 2

    bl. sanitare
  • 299000 €

    prețul
Cod: 406792
str. Sihastrului
Chișinău, Codru,
str. Sihastrului

299 000 €

Agent Imobiliar

Dan Gonța

ecoimobil-agent-avatar
Sună acum 068 881 068
Suprafața

300 ㎡

Dormitoare

3

Blocuri sanitare

2

Etaje

2

Starea

Varianta albă

Tip construcție

Nouă

Suprafața

300m2

Dormitoare

3

Blocuri sanitare

2

Etaje

2

Starea

Varianta albă

Tip construcție

Nouă

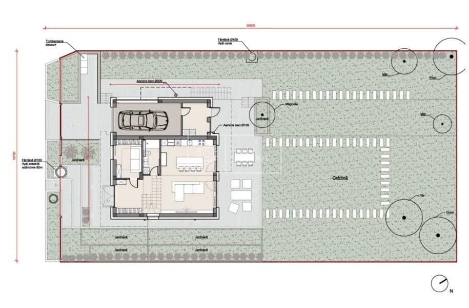
Spre vânzare casă amplasată în Codru.

Locuința este poziționată pe un teren de 7 ari.

Compartimentare:

Parter: cazangerie, garaj, bucătărie + living, bloc sanitar.
Nivel 1 : 3 dormitoare, bloc sanitar, terasă.

Bunul imobil cu suprafața de 300 m.p

Facilități

    Calculator Credite

    Beneficii

    0% comision

    Comision zero la tranzacții pentru cumpărători și chiriași!

    Înregistrare gratis

    Înregistrarea creditului ipotecar cu noi este gratis!

    Deplasare facilă

    Deplasarea cu transportul companiei noastre.

    Oferte similare

    ecoimobil-estate
    Vânzare Case
    2 Dormitoare
    Sîngera
    • Sângera,
    • Chișinău
    175 000€ 80 ㎡
    ecoimobil-estate
    Chirie lunară Case
    2 Dormitoare
    Dumbrava
    • Chișinău,
    • Dumbrava
    900€/lună 125 ㎡
    ecoimobil-estate
    Vânzare Case
    4 Dormitoare
    str. Caucaz
    • Durlești,
    • Chișinău
    199 000€ 95 ㎡
    ecoimobil-estate
    Vânzare Case
    3 Dormitoare
    Suruceni
    • Ialoveni
    77 000€ 98 ㎡

    Serviciile Eco Imobil

    Asistență materiale publicitare

    Șansele de vânzare cresc dacă produsul e bine prezentat. Și aici vorbim despre întreg pachetul: poze, descriere, etc.

    Asistență juridică

    Cunoaștem toate dedesupturile domeniului și știm la ce să atragem atenția. Beneficiază de asistență.

    Consultație

    Suntem în acest domeniu de ani de zile. Dacă ai nevoie de o consultație cu un specialist nu ezita să ne contactezi.

    Chirie

    Vrei să dai în chirie un apartament, casă sau un spațiu comercial? Sau vrei să închiriezi? Adresează-te!

    Vânzare-cumpărare

    Te asistăm în tot decursul procesului de vânzare-cumpărarare. Avem ani de experiență – ai încredere în noi.

    Evaluare calificată

    Ai nevoie de o evaluare de imobil profesionistă și calificată? Suntem alături.

    Partenerii Eco Imobil