• Vânzare
  • Apartamente
Chișinău, Buiucani, str. Ion Buzdugan

204 900€

ecoimobil-agent-avatar

Irina Herghelegiu

Agent Imobiliar
Sună acum 068 881 103
ecoimobil-agent-avatar
Irina Herghelegiu

068 881 103

str. Ion Buzdugan
str. Ion Buzdugan, Buiucani
  • 74 ㎡

    suprafața
  • 3

    camere
  • 2

    dormitoare
  • 1

    bl. sanitar
  • 204900 €

    prețul
Cod: 407024
str. Ion Buzdugan
Chișinău, Buiucani,
str. Ion Buzdugan

204 900 €

Agent Imobiliar

Irina Herghelegiu

ecoimobil-agent-avatar
Sună acum 068 881 103
Suprafața

74 ㎡

camere

3

Dormitoare

2

Blocuri sanitare

1

Etaj

9 din 12

Balcon

1

Starea

Reparație euro

Tip construcție

Nouă

Suprafața

74m2

camere

3

Dormitoare

2

Blocuri sanitare

1

Etaj

9 din 12

Balcon

1

Starea

Reparație euro

Tip construcție

Nouă

Se vinde apartament superb, absolut nou, în complexul rezidențial realizat de compania ExFactor, pe str. Ion Buzdugan, sect. Buiucani.

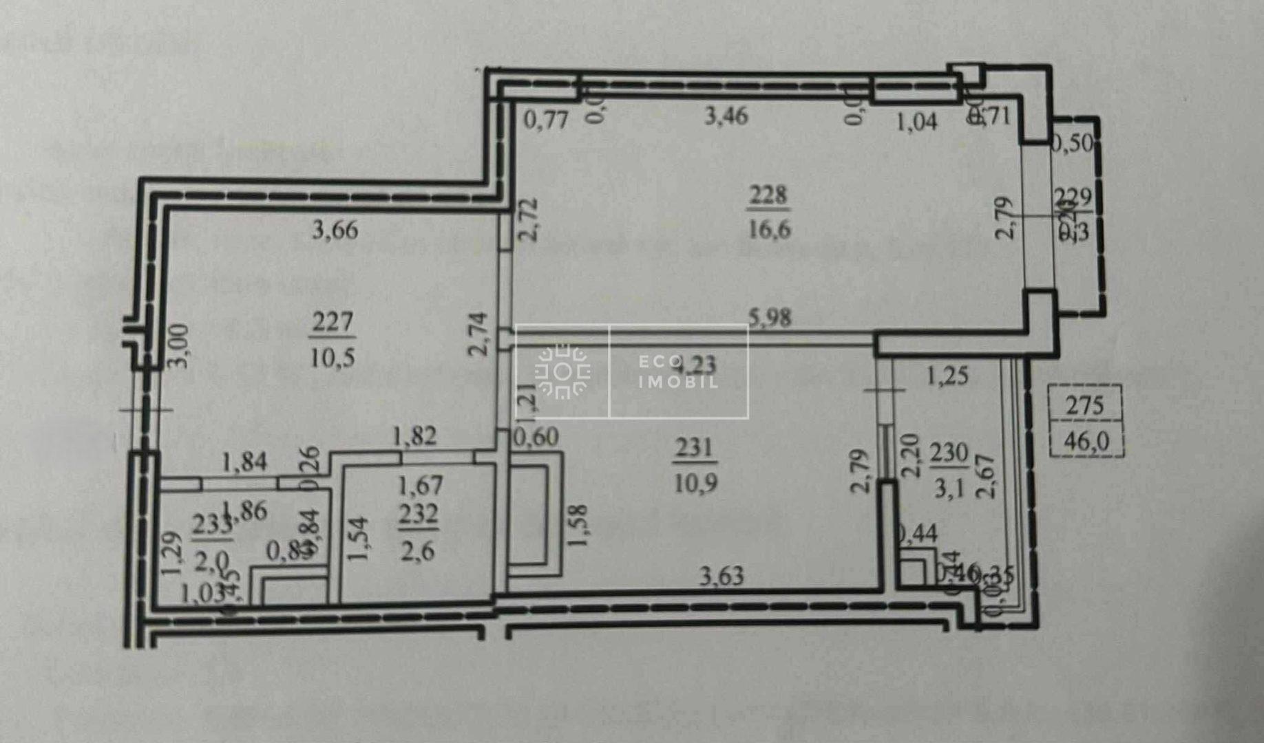
Bunul imobil, cu suprafața de 74 m.p., este poziționat la etajul 9 din 12 cu vedere frumoasă spre pădure.
Compartimentare reușită: 2 dormitoare separate, salon spațios, bucătărie, balcon, bloc sanitar, antreu.

Dispune de reparație de calitate, este complet mobilat și dotat cu toată tehnica pentru uz casnic de calitate.
Încălzire autonomă, geamuri panoramice, vedere frumoasă!

În imediată apropiere găsiți: bd. Alba-Iulia, piața Delfin, supermarkete, centre comerciale, farmacie, bancă, școală etc.

Facilități

  • Mobilat
  • Gata de intrare
  • Comunicațiile conectate
  • Acces facil la transportul public
  • Parcare deschisă
  • Geamuri termopane
  • Infrastructură dezvoltată
  • Gradiniță
  • Interfon
  • Încălzire autonomă

Calculator Credite

Beneficii

0% comision

Comision zero la tranzacții pentru cumpărători și chiriași!

Înregistrare gratis

Înregistrarea creditului ipotecar cu noi este gratis!

Deplasare facilă

Deplasarea cu transportul companiei noastre.

Oferte similare

ecoimobil-estate
Chirie lunară Apartamente
1 cameră
str. Nicolae Testemițanu
  • Telecentru,
  • Chișinău
550€/lună 45 ㎡
ecoimobil-estate
Vânzare Apartamente
3 camere
bd. Alba Iulia
  • Buiucani,
  • Chișinău
195 000€ 80 ㎡
ecoimobil-estate
Chirie lunară Apartamente
3 camere
str. Ciuflea
  • Centru,
  • Chișinău
1 600€ 1 500€ 115 ㎡
ecoimobil-estate
Chirie lunară Apartamente
2 camere
str. Ghică Vodă
  • Botanica,
  • Chișinău
650€/lună 53 ㎡

Serviciile Eco Imobil

Asistență materiale publicitare

Șansele de vânzare cresc dacă produsul e bine prezentat. Și aici vorbim despre întreg pachetul: poze, descriere, etc.

Asistență juridică

Cunoaștem toate dedesupturile domeniului și știm la ce să atragem atenția. Beneficiază de asistență.

Consultație

Suntem în acest domeniu de ani de zile. Dacă ai nevoie de o consultație cu un specialist nu ezita să ne contactezi.

Chirie

Vrei să dai în chirie un apartament, casă sau un spațiu comercial? Sau vrei să închiriezi? Adresează-te!

Vânzare-cumpărare

Te asistăm în tot decursul procesului de vânzare-cumpărarare. Avem ani de experiență – ai încredere în noi.

Evaluare calificată

Ai nevoie de o evaluare de imobil profesionistă și calificată? Suntem alături.

Partenerii Eco Imobil