- Vânzare
- Apartamente
320 000€

Irina Herghelegiu
Agent ImobiliarSe vinde penthouse în variantă albă cu suprafața generoasă, în complexul rezidențial City Gardens, cu amplasare reușită pe bd. Renașterii Naționale, sect. Râșcani.
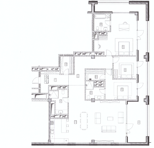
Imobilul cu suprafața de 215 mp este poziționat la etajul 15, nivel 16.
Compartimentare: 3 dormitoare, salon spațios comasat cu bucătărie, 3 blocuri sanitare, antreu, garderobă, 2 terase.
Construcția Complexului City Gardens utilizează cele mai avansate tehnologii pentru a oferi locatarilor apartamente inovatoare, sigure și de înaltă calitate:
Carcasul este proiectat pentru a rezista la cutremure de până la 8 grade pe scara Richter.
Pereții din cărămidă roșie asigură o izolare fonică și termică de calitate superioară, datorită materialului mineral 100% natural – multipor.
Pardoselile izolate fonic și termic contribuie la un mediu de trai liniștit și confortabil.
Înălțimea tavanului generoasă de 3 metri conferă spațiilor un aer luminos și spațios.
Acces facil la arterele principale ale orașului !
Facilități
- Infrastructură dezvoltată
- Comunicațiile conectate
- Acces facil la transportul public
- Parcare deschisă
- Geamuri termopane
Calculator Credite
Beneficii
0% comision
Comision zero la tranzacții pentru cumpărători și chiriași!
Înregistrare gratis
Înregistrarea creditului ipotecar cu noi este gratis!
Deplasare facilă
Deplasarea cu transportul companiei noastre.
Oferte similare
Serviciile Eco Imobil
Asistență materiale publicitare
Șansele de vânzare cresc dacă produsul e bine prezentat. Și aici vorbim despre întreg pachetul: poze, descriere, etc.
Asistență juridică
Cunoaștem toate dedesupturile domeniului și știm la ce să atragem atenția. Beneficiază de asistență.
Consultație
Suntem în acest domeniu de ani de zile. Dacă ai nevoie de o consultație cu un specialist nu ezita să ne contactezi.
Chirie
Vrei să dai în chirie un apartament, casă sau un spațiu comercial? Sau vrei să închiriezi? Adresează-te!
Vânzare-cumpărare
Te asistăm în tot decursul procesului de vânzare-cumpărarare. Avem ani de experiență – ai încredere în noi.
Evaluare calificată
Ai nevoie de o evaluare de imobil profesionistă și calificată? Suntem alături.