Se vinde apartament cu o odaie variantă albă, amplasat în centrul or. Criuleni bd. Biruinței În complexul locativ Conscity.
Bloc dat în exploatarea.
Posibilitate achitare în rate direct la dezvoltator pîna la 5 ani.
Prima rată minim 20%.
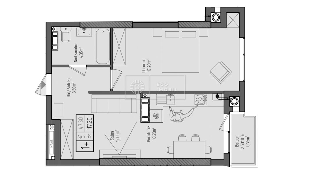
Suprafața totală 47,3 m.p, poziționat la etajul 7 din 7.
Compartimentare: 1 dormitor, bucătărie +living, bloc sanitar, hol, garderobă, balcon.
Caracteristici: variantă albă, încălzire autonomă, geamuri termopane, ușă blindată, planimetrie reușită cu posibilitatea de replanificare.
Curtea complexului este amenajată cu teren de joacă pentru copii, pază și supraveghere video 24/24.
Sunt disponibile 38 parcari subterane de tip inchis şi parcari de tip deschis.
În imediată apropiere se găsesc numeroase puncte sociale și comerciale: supermarket, farmacie, bancă, grădiniță, zonă de parc, liceu, universitate etc.
Acees facil la transport public spre Chișinău sau alte localități.
Facilități
- Încălzire autonomă
- Comunicațiile conectate
- Acces facil la transportul public
- Parcare deschisă
- Geamuri termopane
- Infrastructură dezvoltată
- Gradiniță
- Interfon
Calculator Credite
Beneficii
0% comision
Comision zero la tranzacții pentru cumpărători și chiriași!
Înregistrare gratis
Înregistrarea creditului ipotecar cu noi este gratis!
Deplasare facilă
Deplasarea cu transportul companiei noastre.
Oferte similare
Serviciile Eco Imobil
Asistență materiale publicitare
Șansele de vânzare cresc dacă produsul e bine prezentat. Și aici vorbim despre întreg pachetul: poze, descriere, etc.
Asistență juridică
Cunoaștem toate dedesupturile domeniului și știm la ce să atragem atenția. Beneficiază de asistență.
Consultație
Suntem în acest domeniu de ani de zile. Dacă ai nevoie de o consultație cu un specialist nu ezita să ne contactezi.
Chirie
Vrei să dai în chirie un apartament, casă sau un spațiu comercial? Sau vrei să închiriezi? Adresează-te!
Vânzare-cumpărare
Te asistăm în tot decursul procesului de vânzare-cumpărarare. Avem ani de experiență – ai încredere în noi.
Evaluare calificată
Ai nevoie de o evaluare de imobil profesionistă și calificată? Suntem alături.
